- Woonoppervlakte
- Circa 68 m²
- Inhoud
- Circa 196 m³
- Bouwjaar
- Gebouwd in 1920
- Aantal kamers
- 2 kamers (1 slaapkamers)
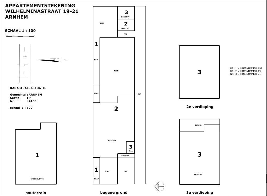
Dit karakteristieke souterrain aan de Wilhelminastraat 19 A bewijst dat betaalbaar wonen in Arnhem niet betekent dat je hoeft in te leveren op ruimte. Met een woonoppervlakte van 68 m² en een indrukwekkende woonkamer van bijna 40 m² biedt deze woning een basis die je in deze prijsklasse zelden tegenkomt. Gelegen in de geliefde wijk Lombok, woon je hier nabijde iconische Koepelgevangenis en met alle stadse voorzieningen binnen handbereik.
De Beleving
De woonkamer voelt direct bij binnenkomst ruim aan. Door de royale afmetingen is er meer dan genoeg plek voor een grote eethoek en een riante zithoek, zonder dat het benauwd wordt. Vanuit de woonkamer heb je direct toegang tot de praktische bijkeuken, de ideale plek voor je wasopstelling en extra voorraad, zodat je leefruimte strak en opgeruimd blijft.
De keuken is functioneel ingericht en biedt direct toegang naar de badkamer, die is voorzien van een douche en toilet. Aan de voorzijde van het pand bevindt zich de slaapkamer. Door de ligging in het souterrain blijft deze kamer heerlijk koel in de zomer en geniet je hier van een rustige nachtrust.
Buitenleven in de stad
Wat dit object echt uniek maakt? De achtertuin. Hier geniet jij van 38 m² aan eigen buitenruimte. De achtertuin wordt momenteel nog aangepast en zal conform de splitsingstekening worden opgeleverd. Hoewel de buitenruimte nu nog wat liefde en groene vingers vraagt, is dit juist het moment om er je eigen stempel te drukken. Met een ligging op het oosten geniet je hier straks in alle rust van je eerste kop koffie in de ochtendzon, midden in de stad. En met de handige achterom stal je je fiets veilig en snel.
Leven in Lombok
Wonen in Lombok betekent het beste van twee werelden. Je woont nabij de indrukwekkende voormalige Koepelgevangenis en wandelt binnen enkele minuten naar Park Mariëndaal of de Uiterwaarden voor een frisse neus. Voor de dagelijkse boodschappen hoef je alleen de hoek om naar de supermarkt, en de gezellige kroegjes van de stad liggen letterlijk binnen handbereik. Bovendien ligt het station op korte afstand, waardoor je ook met het openbaar vervoer snel en gemakkelijk op pad bent.
Bijzonderheden:
Energielabel C: comfortabel wonen met dubbel glas en een eigen HR-combiketel.
Woonoppervlakte van 68m² met een zeer royale woonkamer.
VvE is in oprichting.
Kom kijken!
Ben jij klaar om die maandelijkse huur in te ruilen voor een investering in je eigen toekomst? Dit souterrain wacht op iemand die de potentie ziet en hier zijn of haar eigen droomplek van maakt.
Aanvaarding: kan snel
Bekijk voor meer details de woningwebsite en vraag hier direct een bezichtiging aan:
wilhelminastraat19a.nl
Disclaimer: Alle vermelde afmetingen zijn indicatief. Aan eventuele afwijkingen kunnen geen rechten worden ontleend.
Overdracht
- Vraagprijs
- € 199.000 k.k.
- Status
- Beschikbaar
- Aanvaarding
- In overleg
Bouw
- Object type
- Benedenwoning, appartement
- Soort bouw
- Bestaande bouw
- Bouwjaar
- 1920
- Soort dak
- Zadeldak bedekt met pannen
Oppervlakte en inhoud
- Woonoppervlakte
- 68 m²
- Inhoud
- 196 m³
Indeling
- Aantal kamers
- 2 kamers (1 slaapkamers)
- Aantal badkamers
- 1 badkamer
- Badkamervoorzieningen
- Toilet, douche
- Aantal woonlagen
- 1 woonlaag
- Voorzieningen
- Natuurlijke ventilatie
Energie
- Energielabel
- C
- Energielabel registratie
- 29-01-2026
- Isolatie
- Dubbel glas, gedeeltelijk dubbel glas
- Verwarming
- Cv-ketel
- Warm water
- Cv-ketel
- Cv ketel
- Vaillant combiketel gas gestookt (eigendom)
Buitenruimte
- Ligging
- Aan rustige weg, in centrum, in woonwijk
- Tuin
- Achtertuin
- Afmetingen achtertuin
- 38 m² (5 meter diep en 5 meter breed)
- ligging tuin
- Gelegen op het oosten en bereikbaar via achterom
Garage
- Soort garage
- Geen garage
Parkeergelegenheid
- Soort parkeergelegenheid
- Openbaar parkeren
VvE checklist
- Inschrijving KvK
- Ja
- Periodieke bijdrage
- Ja
- Opstalverzekering
- Ja
Energieverbruik in Arnhem
Energielabel deze woning
Energielabel C
Publicatie energielabel: 29-01-2026
Stroomverbruik per jaar
(Gemiddelde appartement in Arnhem)
Gasverbruik per jaar
(Gemiddelde appartement in Arnhem)
* Cijfers zijn afkomstig van het CBS en bedoeld als indicatie en kunnen verschillen voor deze woning
Indicatie hypotheeklasten
Eigen inleg:
Spaargeld / overwaarde
Rente:
Laagste 10-jaars rente
Laagste 10-jaars rente
2,78% - Centraal Beheer - NHG
3,04% - Centraal Beheer - 80%
Laagste 20-jaars rente
3,29% - Centraal Beheer - NHG
3,52% - Centraal Beheer - 80%
Laagste 30-jaars rente
3,41% - Centraal Beheer - NHG
3,7% - Argenta - 80%
Hypotheek:
Bruto maandlasten: € 0 p/m
Netto maandlasten: € 0 p/m
Hoe berekenen we dit?
Het rentepercentage is gebaseerd op de laagste 10 jaars vaste rente voor één hypotheekdeel. De vermelde rente (2.78% met NHG) is gecontroleerd op 13-05-2026. Deze berekening is gebaseerd op een annuïteitenhypotheek die volledig wordt afgelost, waarbij de maandlasten gedurende de gehele looptijd gelijk blijven. De werkelijke rente en netto maandlasten kunnen variëren, afhankelijk van uw persoonlijke situatie en de hypotheekverstrekker. Raadpleeg een financieel adviseur voor een nauwkeurige berekening en advies. Aan deze berekening kunnen geen rechten worden ontleend; het dient enkel als indicatie.
Documentatie
Kadastrale kaart
Leefomgeving
Plattegronden PDF
WOZ waarderapport
BAG uittreksel
Brochure
Biedingsprocedure
Bezichtiging
Bod uitbrengen
Waardebepaling
Zoekopdracht
Alles downloaden
Zonnegrenzen bekijken
Inwoners in Arnhem
Cijfers voor postcodegebied 6812
- Totaal aantal inwoners
- 2760 inwoners
- Mannen
- 49%
- Vrouwen
- 51%
Inwoners in Arnhem
Cijfers voor postcodegebied 6812
- tot 15 jaar
- 12%
- 15 tot 25 jaar
- 9%
- 25 tot 35 jaar
- 24%
- 45 tot 65 jaar
- 30%
- 65 en ouder
- 25%
Huishoudens in Arnhem
Cijfers voor postcodegebied 6812
- Eenpersoons zonder kinderen
- 51%
- Meerpersoons zonder kinderen
- 27%
- Huishoudens zonder kinderen
- 78%
Huishoudens in Arnhem
Cijfers voor postcodegebied 6812
- Huishoudens met één kind
- 5%
- Huishoudens met meerdere kinderen
- 16%
- Huishoudens met kinderen
- 21%
Woningen in Arnhem
Cijfers voor postcodegebied 6812
- Woningen voor 1945
- 56%
- Woningen tussen 1945 en 1965
- 10%
- Woningen tussen 1965 en 1975
- 8%
- Woningen tussen 1975 en 1985
- 9%
- Woningen tussen 1985 en 1995
- 1%
Woningen in Arnhem
Cijfers voor postcodegebied 6812
- Woningen tussen 1995 en 2005
- 7%
- Woningen tussen 2005 en 2015
- 4%
- Woningen na 2015
- 6%
- Huurwoningen
- 40%
- Koopwoningen
- 60%
Overige in Arnhem
Cijfers voor postcodegebied 6812
- Gemiddelde WOZ waarde
- € 281.000,-
- Personen onder de 65 met uitkering
- 7%
Overige in Arnhem
Cijfers voor postcodegebied 6812
- Adressen per km²
- 1170
- Stedelijkheid (schaal 1 op 5)
- 60%
Korte feiten over Arnhem
Arnhem is een stad en gemeente in Nederland en de hoofdstad van de provincie Gelderland. De gemeente telt 164.096 inwoners per 31 januari 2022 (bron: CBS) en is daarmee de twaalfde gemeente van Nederland.
Roel Willemsen Garantiemakelaars
Zoekt u een makelaar die verder kijkt dan de standaard en écht meedenkt met uw wensen? Dan bent u bij Roel Willemsen Garantiemakelaars aan het juiste adres. Sinds 1974 zijn wij actief in de regio Arnhem en als marktleider in Arnhem-Zuid hebben wij een sterke reputatie opgebouwd met een resultaatgerichte en klantgerichte aanpak.
Onze kracht ligt in maatwerk. Iedere woning is uniek en verdient een presentatie die zich onderscheidt van de rest. Met persoonlijke begeleiding, een doordachte strategie en een hecht team van specialisten zorgen wij voor een optimale verkoop of aankoop. Resultaatgericht, persoonlijk en betrokken vormen de kern van onze dienstverlening.
Als NVM-lid en Garantiemakelaar bieden wij extra zekerheid, kwaliteit en transparantie. Van een uitgebreide woningpresentatie tot een duidelijke verkoopstrategie: wij zetten altijd dat stapje extra. Juist in de huidige markt maakt dit vaak het verschil.
Wij geloven in dienstverlening op maat. Alles is bespreekbaar, van de aanpak tot de beloning. Of u nu kiest voor een traditioneel tarief, een vast bedrag of een courtage op maat, de afspraken sluiten altijd aan op uw wensen en doelstellingen.
Een succesvolle verkoop begint met een goed gesprek. Wij nodigen u graag uit om samen uw woonplannen te bespreken en een persoonlijk verkoopplan op te stellen.
Nieuwste reviews
-
Merlijn Kerremans
Ik heb een super fijne ervaring met deze makelaar! Vanaf het eerste contact betrokken, eerlijk en altijd bereikbaar. Geen standaard aanpak,...
-
Boxmeerhof 13
Het was een juiste beslissing om makelaar Willemsen als aankoopmakelaar en verkoopmakelaar te nemen. Deskundigheid in de zoektocht naar een...
-
Sonatestraat 20
Met de aankoop en verkoop van onze woning hebben we een prima begeleiding gehad. Deskundigheid en een positieve hulp bij de zoektocht was ze...